フェニックス本郷東大前 更新日:2015年8月30日

文京区湯島4丁目に立地する、ペット可分譲賃貸マンション「フェニックス本郷東大前」のご紹介です。東京メトロ千代田線「湯島」駅から徒歩7分の好立地にございます。
女性の方に安心のオートロックや防犯カメラなどのセキュリティ設備、不在時に便利な24時間受け取り可能の宅配ボックス、敷地内ゴミ置場など分譲ならではの設備が揃っております。
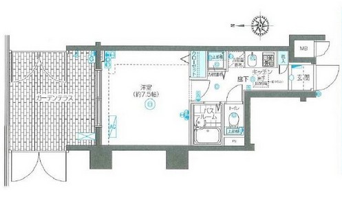
今回募集の1階のお部屋は一人暮らしの方や学生さんにおすすめの1Kタイプの間取りです。
部屋設備は人気のバストイレ別でバスルームに雨の日に便利な浴室乾燥機を完備。バスルームの近くには室内洗濯機置場を設置しました。室内なので衛生的ですね。
キッチンはお料理がしやすい2口ガスコンロ付きのシステムキッチンを採用。居室にはエアコンがございますので1年中快適にお過ごしいただけます。
こちらのお部屋は即入居可となっておりますのでお早めにお問い合わせください。
物件画像
*画像をクリックすると拡大表示します。物件詳細
| 場所 | 湯島4丁目 地図
フェニックス本郷東大前 |
||
|---|---|---|---|
| アクセス | 徒歩7分 徒歩10分 都営大江戸線「本郷三丁目駅」 徒歩8分 |
||
| 築年月 | 2009/07/01 | ||
| 建物階数 | 地上7階 | 総戸/区画数 | |
| 構造 | RC | 取引態様 | |
| 引渡/入居時期 | *** | 現況 | |
| 駐車場 | |||
| 設備・条件 | 2人入居可, 学生歓迎, ペット可能, 角部屋, 分譲賃貸, 二口コンロ, システムキッチン, 給湯, 追い焚き, 独立洗面台, シャワー, 浴室乾燥機, トイレ専用, バス・トイレ別, エアコン, 室内洗濯機置き場, CATV, CSアンテナ, BSアンテナ, 光ファイバー, インターネット有, オートロック, TVドアホン, セキュリティシステム, 防犯カメラ, エレベータ, 宅配ボックス, 出窓, バルコニー, フローリング, タイル貼り, ペット飼育時敷金1ヶ月追加 収納有, クローゼット, グリル付き, 24時間換気システム, 単身可, 脱衣所, 2階以上, 2面採光, 照明付き, |
||
| URL | フェニックス本郷東大前 | ||
| 物件番号 | 125017 | ||
| 状態 | 成約 | ||
物件マップ
Loading...
※現況と掲載内容に相違がある場合、現況を優先致しますのでご了承下さい。












