スカイコート大森壱番館 更新日:2016年4月26日

JR京浜東北線大森駅から徒歩6分「スカイコート大森壱番館」の物件ページです。大田区大森北2丁目に立地するこちらの物件は、地上12階建て、鉄筋コンクリート造の分譲賃貸マンションです。
エントランスには、オートロックを完備していますのでセキュリティーも安心です。また、共用設備として人気のお宅配ボックスも設置。留守が多い単身の方にも大変人気のある便利な設備です。
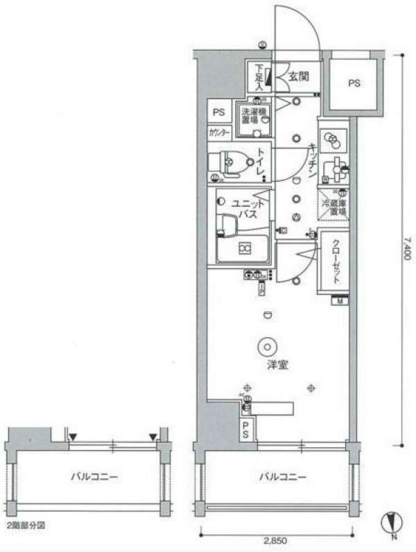
募集中のお部屋は、一人暮らしの方向けの1Kタイプ。バストイレ別タイプで生活のしやすいスタンダードな間取りです。お料理のしやすいシステムキッチンや、浴室換気乾燥暖房機など、設備も充実しています。玄関には、人感センサー照明が付いていますので、足元も安全です。さらに設備トラベルは、24時間対応のコールセンターが利用料無料でご利用いただけます。
「スカイコート大森壱番館」の交通アクセスは、JR京浜東北線『大森』駅が徒歩6分と最寄になります。駅からも近く、通学や通勤もらくらくです。また、京急本線『大森海岸』駅も徒歩7分もご利用いただけます。
『大森』駅周辺は、飲食店・銀行・病院など暮らしに必要な施設も揃っています。生鮮食品のお買い物には、成城石井 アトレ大森店や西友などが便利です。また近くには、天然温泉 平和島やシネマサンシャイン平和島やしながわ水族館などのレジャースポットもあり、休日のお出かけもお楽しみいただけます。
物件画像
*画像をクリックすると拡大表示します。物件詳細
| 場所 | 大森北2丁目 地図
スカイコート大森壱番館 |
||
|---|---|---|---|
| アクセス | 徒歩6分 徒歩7分 | ||
| 築年月 | 2012/10/01 | ||
| 建物階数 | 地上11階 | 総戸/区画数 | |
| 構造 | RC | 取引態様 | |
| 引渡/入居時期 | 現況 | ||
| 駐車場 | |||
| 設備・条件 | 2人入居可, 学生歓迎, 分譲賃貸, 二口コンロ, システムキッチン, 給湯, シャワー, 浴室乾燥機, トイレ専用, バス・トイレ別, エアコン, 室内洗濯機置き場, CATV, CSアンテナ, BSアンテナ, 光ファイバー, インターネット有, オートロック, TVドアホン, セキュリティシステム, 防犯カメラ, エレベータ, 宅配ボックス, バイク置き場, バルコニー, フローリング, タイル貼り, デザイナーズ, 24時間有人管理, 収納有, クローゼット, ディンプルキー, 24時間換気システム, 単身可,照明付き, |
||
| URL | スカイコート大森壱番館 | ||
| 物件番号 | 123879 | 掲載期限日 | 2015/10/14 |
| 状態 | 成約 | ||
物件マップ
Loading...
※現況と掲載内容に相違がある場合、現況を優先致しますのでご了承下さい。

