ステージグランデ茅場町 更新日:2015年9月1日

中央区新川1丁目に立地する、築浅分譲賃貸マンション「ステージグランデ茅場町」のご紹介です。JR京葉線「八丁堀」駅から徒歩6分と駅近の好立地にございます!
女性の方に安心のオートロックや防犯カメラなどのセキュリティ設備や不在時に便利な24時間受け取り可能の宅配ボックス、駐輪場など分譲ならではの設備が揃っております。
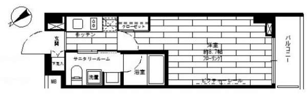
今回募集の6階のお部屋は、一人暮らしの方や学生さんにおすすめの1Kタイプの間取りです。
部屋設備は人気のバストイレ別でバスルームに雨の日に便利な浴室乾燥機を完備。バスルームの隣には女性の方に嬉しい独立洗面台と室内洗濯機置場を設置しました。
キッチンはお料理がしやすい2口ガスコンロ付きのシステムキッチンを採用。約8.2帖の広々とした居室にはエアコンがございますので1年中快適にお過ごしいただけます。
こちらのお部屋はネット無料で使い放題なのでネットをお使いの方はオトクです!
物件画像
*画像をクリックすると拡大表示します。物件詳細
| 場所 | 新川1丁目 地図
ステージグランデ茅場町 |
||
|---|---|---|---|
| アクセス | 徒歩7分 徒歩10分 JR京葉線「八丁堀駅」 徒歩6分東京メトロ東西線「茅場町駅」 徒歩7分 |
||
| 築年月 | 2012/05/01 | ||
| 建物階数 | 地上10階 | 総戸/区画数 | 93 |
| 構造 | RC | 取引態様 | |
| 引渡/入居時期 | *** | 現況 | |
| 駐車場 | 有 | ||
| 設備・条件 | 学生歓迎, ペット可能, 分譲賃貸, ガスコンロ, 二口コンロ, システムキッチン, ごみ出し24時間OK, 給湯, 洗髪洗面化粧台, 独立洗面台, シャワー, 浴室乾燥機, トイレ専用, バス・トイレ別, 温水洗浄便座, エアコン, 室内洗濯機置き場, CSアンテナ, BSアンテナ, 光ファイバー, インターネット有, オートロック, TVドアホン, セキュリティシステム, 防犯カメラ, エレベータ, 宅配ボックス, バイク置き場, フローリング, タイル貼り, デザイナーズ, 免震構造, シューズボックス, 制震・免震, クローゼット, サウナ, 24時間換気システム, 単身可, 脱衣所, 2階以上, 照明付き, 2F以上, 収納有, |
||
| URL | ステージグランデ茅場町 | ||
| 物件番号 | 128228 | ||
| 状態 | 成約 | ||
物件マップ
Loading...
※現況と掲載内容に相違がある場合、現況を優先致しますのでご了承下さい。






























