エルデンシア南大泉 更新日:2016年4月26日

西武新宿線武蔵関駅から徒歩14分「エルデンシア南大泉」の物件ページです。
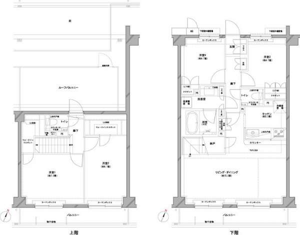
敷金ゼロ、礼金ゼロ、仲介手数料ゼロ、南東向き、広さ99.56平米のお部屋です。
安心のオートロック、防犯カメラ付き物件です。
更新日:2015-06-30
物件画像
*画像をクリックすると拡大表示します。物件詳細
| 場所 | 東京都練馬区南大泉1丁目 地図
エルデンシア南大泉 |
||
|---|---|---|---|
| アクセス | 西武新宿線「武蔵関駅」 徒歩14分 西武池袋線「大泉学園駅」 徒歩27分 西武新宿線「東伏見駅」 徒歩19分 |
||
| 築年月 | 2011/12/01 | ||
| 建物階数 | 地上7階 | 総戸/区画数 | |
| 構造 | RC | 取引態様 | 仲介 |
| 引渡/入居時期 | 2015年06月下旬 | 現況 | |
| 駐車場 | |||
| 設備・条件 | 2人入居可, ペット可能, 分譲賃貸, ガスコンロ, 二口コンロ, システムキッチン, カウンターキッチン, ごみ出し24時間OK, 食器洗い乾燥機, 給湯, 追い焚き, 独立洗面台, シャワー, 浴室乾燥機, トイレ専用, バス・トイレ別, 温水洗浄便座, エアコン, 床暖房, 室内洗濯機置き場, CATV, CSアンテナ, BSアンテナ, 光ファイバー, インターネット有, オートロック, TVドアホン, セキュリティシステム, 防犯カメラ, エレベータ, 宅配ボックス, フローリング, タイル貼り, デザイナーズ, 耐震構造, 免震構造, 鍵交換費用 16200円 シューズボックス, 人感照明センサー, 制震・免震, クローゼット, サウナ, グリル付き, 食器乾燥機, ディンプルキー, 24時間換気システム, 脱衣所, 2階以上, 照明付き, 陽当り良好, 収納有, ウォームレット, 2F以上, |
||
| URL | エルデンシア南大泉 | ||
| 物件番号 | 124157 | ||
| 状態 | 成約 | ||
物件マップ
Loading...
※現況と掲載内容に相違がある場合、現況を優先致しますのでご了承下さい。
































